股票杠杆开通的方法有几种类型-预测明天大盘走势分析-【东方资本】,t 1炒股技巧,配资365,配资证券开户

24小時咨詢電話
027-82411111
當前位置:首頁 > 家裝資訊 > 裝修百科 > 愛佳798香瀾水岸 84㎡地中海風
愛佳798香瀾水岸 84㎡地中海風
發布時間 : 2021-11-10 13:34
來源 :
查看數 :

這套地中海風格的房子是業主給父母準備的,整體采用了年輕風格的設計,配色較為明麗,主要是想讓父母的生活充滿色彩。

 

武漢裝修公司

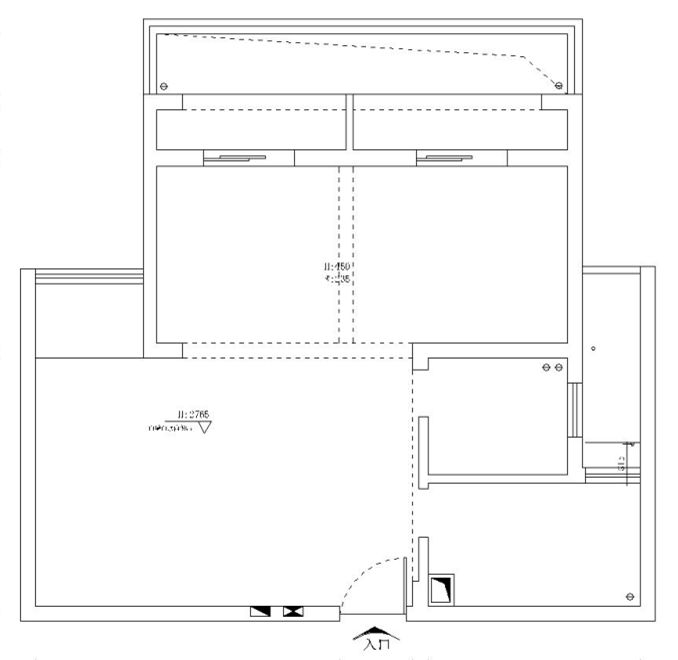
原始戶型臥室外的陽臺面積過大,不充分利用起來比較浪費??蛷d只有只有一個很小的陽臺,采光不是很好。衛生間外有個大陽臺,可用空間較多。


武漢裝修公司
 

在設計的時候,將整體做了重新布局。原有客廳分出一半改作臥室,小陽臺納入室內,增加面積與光照。最大的陽臺一分為二,一半納入臥室,另一半作為生活陽臺。一個臥室與客廳之間打通,充作新的客餐廳,極大的改善了采光。衛生間外陽臺一部分納入廚房,擴充廚房面積 ,一部分改作淋浴間。

 

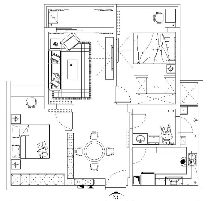
客廳

 


雖然整體面積不大,但是空間利用合理,最大的亮點是設計師將主臥的房門做成了隱形門,使整個客廳更加和諧統一,兼具實用性和美感。


武漢裝修公司
 

墻面大膽運用了藍色打底,顯得生機勃勃,地面采用土黃色防滑瓷磚,背景墻以米色板材包邊,呈現柔和安謐的氣息。


武漢裝修公司
 

電視柜、茶幾以白色做柜面,提亮空間 ,桌面選用紅棕色,沉穩莊重,符合家中老人的氣質。


武漢裝修公司
 

 

餐廳

 


餐廳在入戶區域,考慮到空間大小和和諧性,使用的是圓形餐桌,一家人圍坐在一起,是最幸福溫馨的事。


武漢裝修公司
 

餐邊柜直通吊頂,帶開關插座的地方留空,根據業主需求將部分柜門改為玻璃門,既能收納又能用作展示區。


武漢裝修公司
 

進門落地柜的布置,既能儲物,又能當做換鞋凳,很是方便。因是老人用餐區,特意選了吊扇燈,集照明與吹風于一體,業主很喜歡。


武漢裝修公司
 

 

廚房

 


廚房采光不是很好,選材這方面選用的這種地中海藍色以及大地色瓷磚,櫥柜搭配了感應的燈光,方便業主處理食材。


武漢裝修公司
 

 

主臥

 


原有陽臺納入主臥,以承重柱為界做了個收納柜,柜體橫切面橫跨整個柱體直到靠床,開關插座置于承重柱上,方便老人生活起居。


武漢裝修公司
 

床頭背景以黃色打底,融合了中式風格的花鳥畫,于靜謐安寧中呈現一絲詩情畫意的風情,非常適合老人的審美趣味。


武漢裝修公司
 

主臥這里還設置了一個衣帽間,以白色的簾幔隔開,美觀實用,方便老人起居生活。


武漢裝修公司
 

 

次臥

 


背景墻以白色木質板進行包邊裝飾,鵝黃色乳膠漆進行打底,裝上一幅裝飾畫,簡單、溫馨又時尚。


武漢裝修公司
 

原有陽臺做成飄窗的形式,既能用來儲物,又可以當做臨時休憩的空間。窗簾僅擋住窗體,不會壓縮室內空間,增大了視覺感官。


武漢裝修公司
 

白色衣柜鋪滿整面墻體,既美觀,又滿足了業主收納的需求。


武漢裝修公司
 

 

衛生間

 


衛生間空間比較開闊,做了一個干濕分區,淋浴間單獨隔離出來,避免衛生間都是水,也能有效防止老人不甚滑倒,是個非常實用的設計。


武漢裝修公司
 

定制的洗浴柜符合人體工程力學,以巖板為臺面,非常容易清理,適合老人使用。


武漢裝修公司
 

 


預約設計師
海量行家, 搶訂免費設計服務
每日前20名申請用戶, 獲3D裝修設計圖
熱門樓盤
華僑城
琨瑜府
永泰時代
華發外灘首府
復地東湖國際
新華尚水灣
中建御景星城
江山如畫
招商公園1872
銀泰御華園
預約成功
您已報名成功, 稍后會有客服人員聯系您。 您的隱私將被嚴格保密。
關注二維碼了解更多裝修知識
免費獲取同款設計方案
姓名*
樓盤*
電話*
*為了您的權益, 您的隱私將嚴格保密
聯系我們
裝修咨詢電話 : 027-82411111
售后服務電話 : 027-82866788
公司地址 : 武漢市江岸區澳門路232號金冠大廈
關于我們
友情鏈接 :
    武漢澳華裝飾設計工程有限公司 頁面版權所有 www.801955.com

    算一算,您家裝修需要花多少錢?

    知精準報價 避裝修深坑

    01/03

    選擇您喜歡的風格

    • 現代輕奢

    • 現代美式

    • 北歐

    • 新中式

    • 歐式

    • 其他

    算一算,您家裝修要花多少錢?

    知精準報價 避裝修深坑

    02/03

    選擇房屋面積區間

    • 80-100㎡
    • 100-140㎡
    • 140-200㎡
    • 200-300㎡
    • 300㎡以上

    03/03

    您的戶型

    • 兩居室

    • 三居室

    • 四居室

    • 五居室

    • 六居室

    算一算,您家裝修要花多少錢?

    知精準報價 避裝修深坑

    0%

    稍等片刻,您的報價正在生中......

    算一算,您家裝修要花多少錢?

    知精準報價 避裝修深坑

    您的完整報價已經生成

    報名成功享搶訂優惠名額

    每日僅限前10名用戶