股票杠杆开通的方法有几种类型-预测明天大盘走势分析-【东方资本】,t 1炒股技巧,配资365,配资证券开户

24小時咨詢電話
027-82411111
當前位置 : 首頁 > 戶型解析 > 世茂錦繡長江118㎡三居室簡歐風優雅小窩戶型解析
世茂錦繡長江118㎡三居室簡歐風優雅小窩戶型解析
發布時間 : 2022-03-04 12:01
查看數 :

    案例簡介:本案例的業主偏愛歐洲文化,因此希望設計師在設計的過程中能夠融入一些具有歐洲風情的元素。而由于本案例房屋面積并不算寬敞,如果選用傳統歐式風進行軟裝,會顯得突兀且違和,為了滿足業主的審美同時兼顧空間結構特點,設計師選擇了帶有歐洲風情而又相對比較簡約素雅的簡歐風進行軟裝,通過少量歐式化元素與簡約元素的碰撞組合,打造出業主夢想的起居環境。


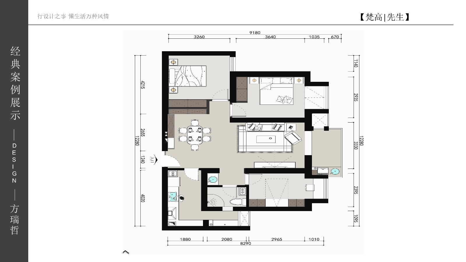
    戶型解析:


梵高先生 實景作品集 第二章_18(1).jpg

    世茂錦繡長江這套118㎡的三居室住宅外部戶型結構平整,但是內部結構存在著一些難以處理的細小角落,如廚房區域向內延伸的區域與墻面形成了一個長條形空間,該空間相對比較擁擠,如果不進行合理的規劃就會導致空間被直接閑置。而設計師在充分考慮區域結構與業主使用需求的前提下,將該區域空間打造成一個“L”形的廚房收納空間,有效提升了空間的利用率。


    客廳:


客廳.jpg

    大面積的白色搭配上暖黃色燈具,強調歐洲貴族風情,造型簡約的家具搭配上細節處理,在無形中增添空間的歐式貴族感。


    廚房:

廚房.jpg

    “L”形設計符合空間結構特點,且保障廚房使用者能夠正常出入。


    書房:


書房.jpg

    榻榻米設計既可以滿足收納需求,又可滿足客人短暫居住需求。


    臥室:


臥室.jpg

    帶有暗紋處理的素色背景清新耐看又高級,搭配上造型華麗的床具,歐式貴族美展露無疑。


預約設計師
海量行家, 搶訂免費設計服務
每日前20名申請用戶, 獲3D裝修設計圖
推薦相關案例
免費獲取同款設計方案
姓名*
樓盤*
電話*
*為了您的權益, 您的隱私將嚴格保密
預約成功
您已報名成功, 稍后會有客服人員聯系您。 您的隱私將被嚴格保密。
關注二維碼了解更多裝修知識
聯系我們
裝修咨詢電話 : 027-82411111
售后服務電話 : 027-82866788
公司地址 : 武漢市江岸區澳門路232號金冠大廈
關于我們
友情鏈接 :
    武漢澳華裝飾設計工程有限公司 頁面版權所有 www.801955.com

    算一算,您家裝修需要花多少錢?

    知精準報價 避裝修深坑

    01/03

    選擇您喜歡的風格

    • 現代輕奢

    • 現代美式

    • 北歐

    • 新中式

    • 歐式

    • 其他

    算一算,您家裝修要花多少錢?

    知精準報價 避裝修深坑

    02/03

    選擇房屋面積區間

    • 80-100㎡
    • 100-140㎡
    • 140-200㎡
    • 200-300㎡
    • 300㎡以上

    03/03

    您的戶型

    • 兩居室

    • 三居室

    • 四居室

    • 五居室

    • 六居室

    算一算,您家裝修要花多少錢?

    知精準報價 避裝修深坑

    0%

    稍等片刻,您的報價正在生中......

    算一算,您家裝修要花多少錢?

    知精準報價 避裝修深坑

    您的完整報價已經生成

    報名成功享搶訂優惠名額

    每日僅限前10名用戶