案例簡介:這個簡約的家,有種獨特的清爽干凈,仿佛是鹽系低糖奶茶的空間,溫暖質感精致簡約而不單調。根本不用打光,滿屏都是高級感的奶系暖色調的高級溫暖至于的理想住宅。新婚夫妻對時尚有著自己的理解,陽臺的空間也給予了溫馨的設計,小兩口每天回到家里心情都會是美美的。
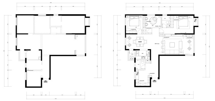
戶型解析:

楊春湖景苑四居室現代簡約風格住宅的面積是150平米,足夠的面積確保了戶型四面通風的狀態,冬暖夏涼的戶型條件使得居住舒適感有效的提升。房屋的客廳朝向以及空間都很好,不足的是三個臥室之間的距離比較近,這樣在夜晚居住中會存在私密性不好的問題,在臥室裝修中需加強隔音處理。
客廳:


奶茶色的色調搭配了奶茶色的時尚沙發,就連墻上高大獨特的掛畫都彰顯出了現代簡約的狀態。
餐廳:


方正的餐廳搭配了奶茶色現代的桌椅,墻上的掛畫看起來簡單卻具有獨特的藝術氣息。
臥室:


臥室仍舊保持了奶茶色的色調,每一處空間合理利用的同時,墻上掛畫都是獨特的現代簡約風格。
書房:

用心設計的書房滿足了工作和休閑的需要,工作勞累之后可以觀看電視,即便是一整天窩在書房也不會感覺到勞累。
知精準報價 避裝修深坑
選擇您喜歡的風格
現代輕奢
現代美式
北歐
新中式
歐式
其他
知精準報價 避裝修深坑
選擇房屋面積區間
您的戶型
兩居室
三居室
四居室
五居室
六居室
知精準報價 避裝修深坑
稍等片刻,您的報價正在生中......
知精準報價 避裝修深坑
每日僅限前10名用戶